COTTO Bàn cầu 2 khối xả không chạm Mood C125337

COTTO
12.840.000₫
Số lượng
Gọi đặt mua: +84943239040 (Miễn phí, 8-21h cả T7,CN)

Tên sản phẩm: Bàn cầu 2 khối xả không chạm Mood

Dòng sản phẩm: Mood

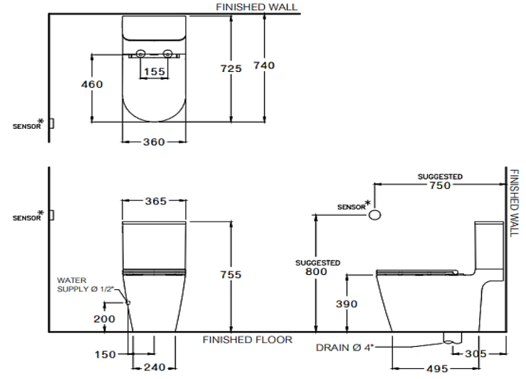
Kích thước (R x D x C): 380 x 715 x 795 mm

Thiết kế: Thân dài, thoát thẳng, tâm xả 305mm

Chất liệu: Ceramic, màu trắng

Công nghệ kháng khuẩn+D58 Ultra Clean+ ức chế sự phát triển của vi khuẩn lên đến 99% trong 24h và bề mặt bóng mịn.

Hệ thống xả Triplex, chỉ 4,5L cho mỗi lần xả

Bao gồm: Van khóa, đế cầu, dây cấp

popup

Số lượng:

Tổng tiền: